Toggle navigation
Call - us
937 746-2932
Home
Subdivisions & Lots
Subdivision Maps
Spec Homes (MLS Listed)
25 Copperhead Trail Springboro
25 Timber Creek Drive Carlisle
65 Timber Creek Drive
85 Timber Creek Drive Carlisle
90 Timber Creek Drive Carlisle
Covenants & Declarations
Eagle Ridge
Eagle Ridge - Code of Regulations
Timber Creek
Cedar Creek
What We Offer
Floor Plans
Gallery
Commercial
Contact
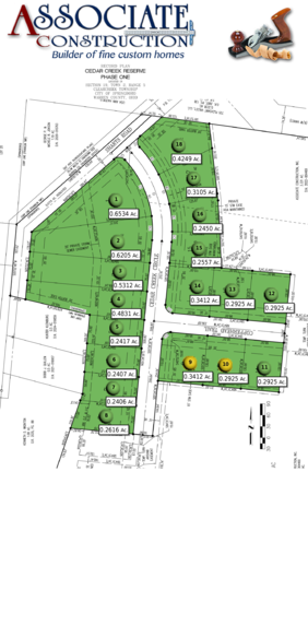
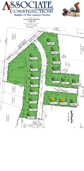
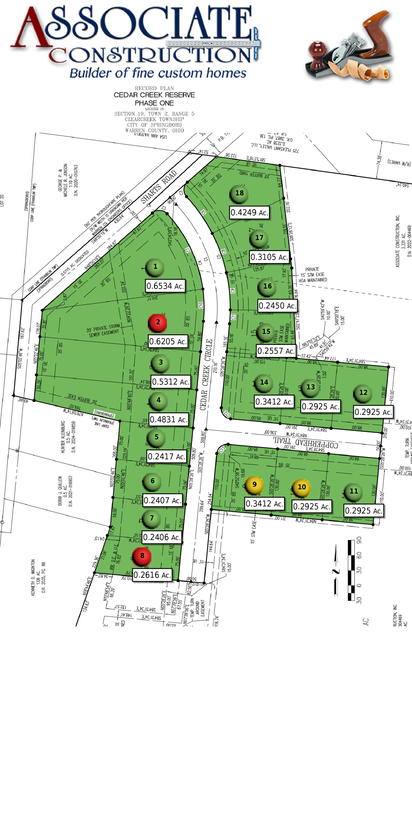
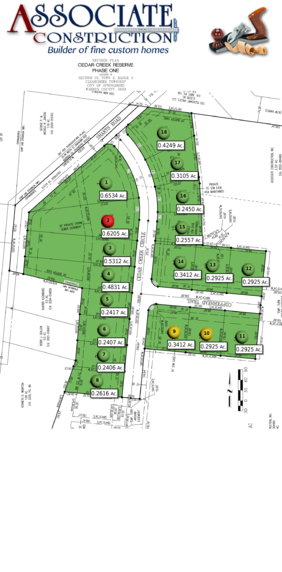
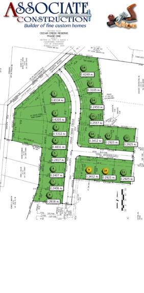
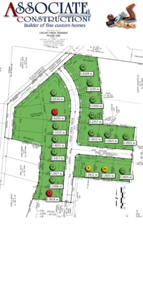
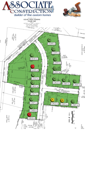
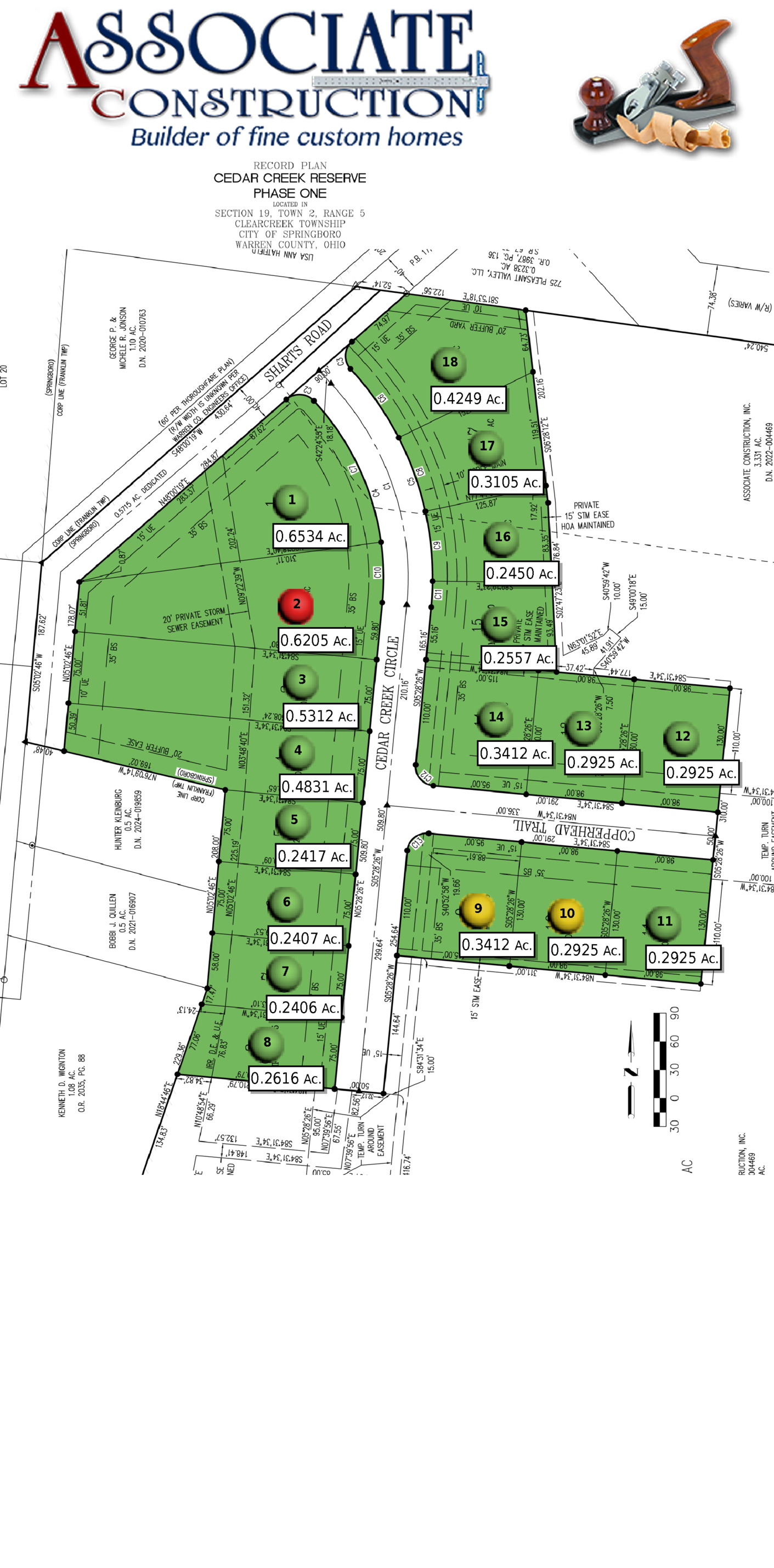
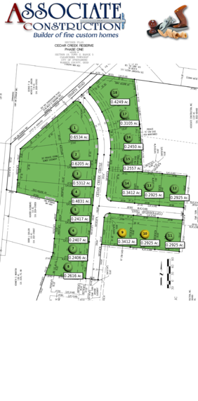
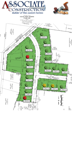
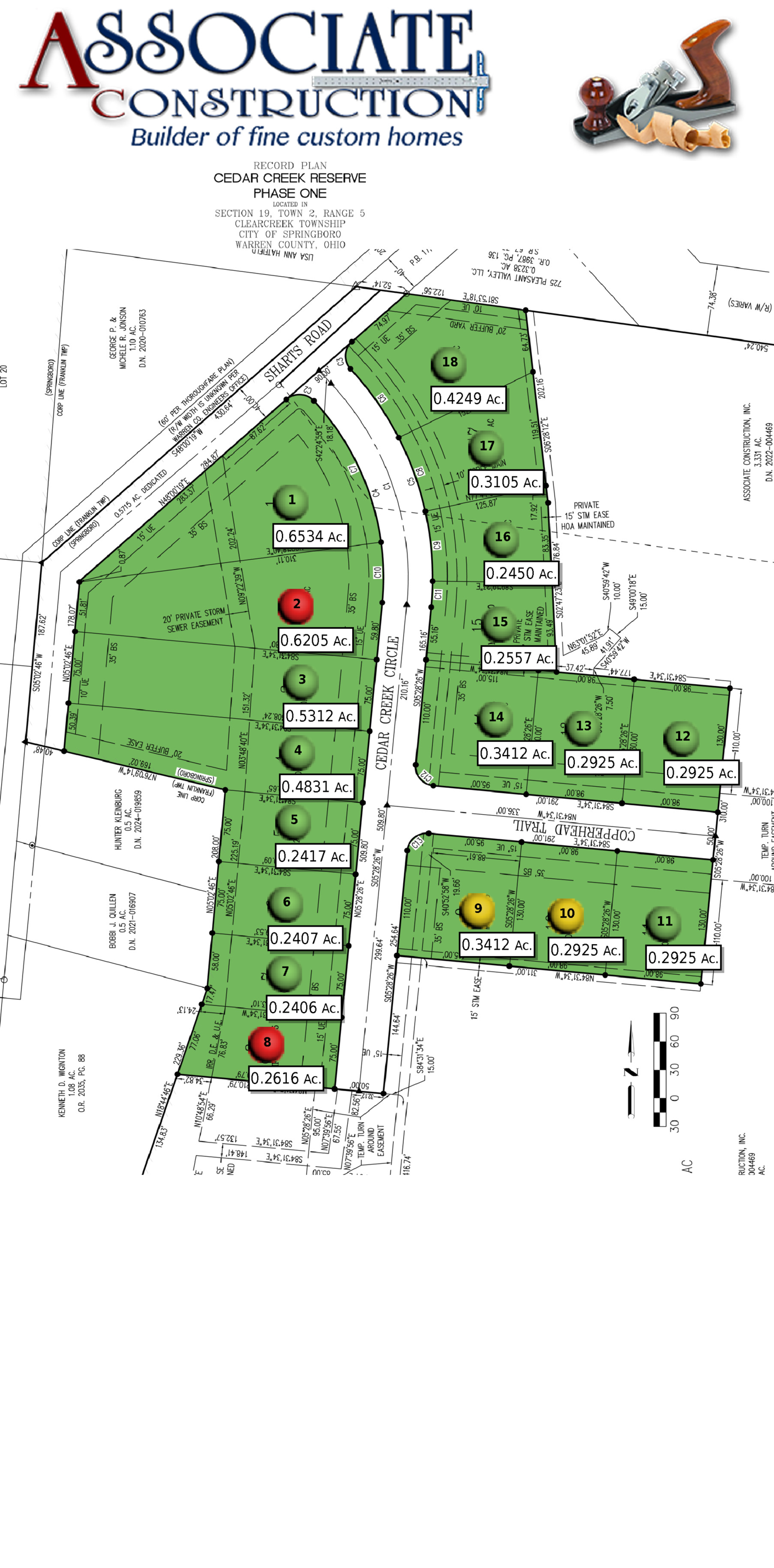
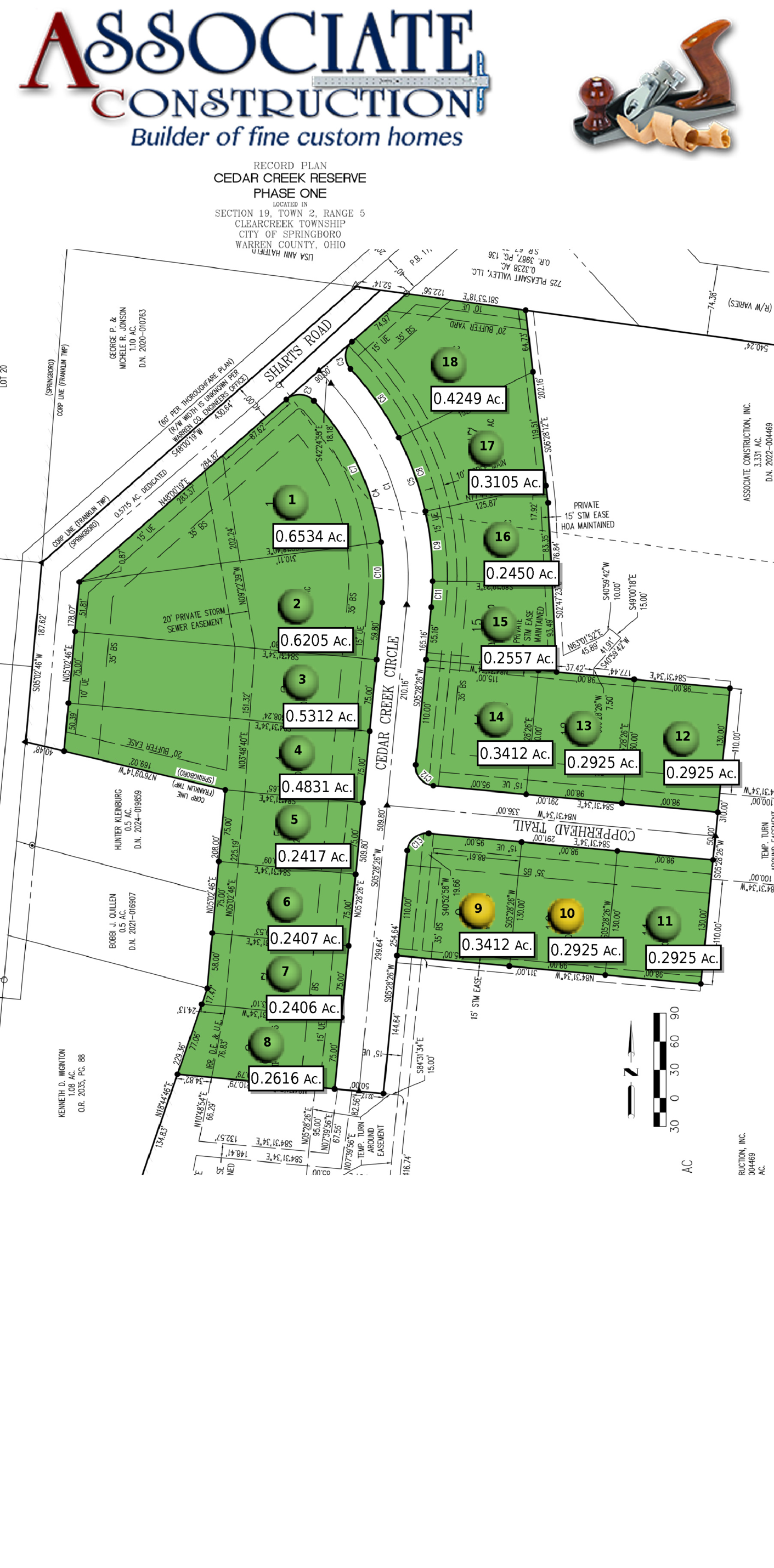
Click the maps to view larger images.
CEDAR CREEK SECTION 1
Click To Print
TIMBER CREEK
Click To Print